Under Contract

165 - 167 Olympic Pde, Kangaroo Flat

$1,200,000

3,040 m2

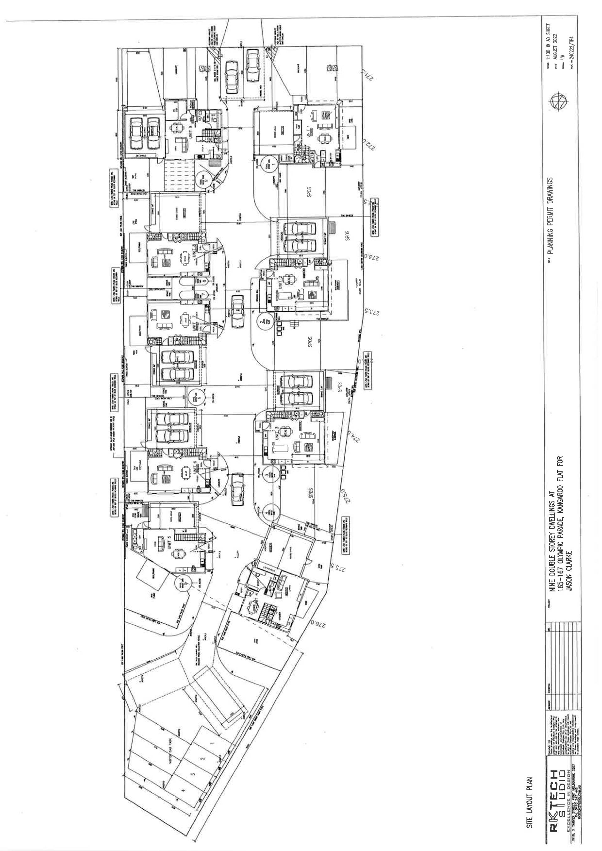
Outstanding Development Opportunity for 9 Units!

It is not often that you find an opportunity like the one presented here. 

Over 3000 Square metres over two amalgamated lots to form a unique boutique development. 

There are plans already drawn up for the development of nine two story townhouses with fabulous access to all that Kangaroo Flat has to offer. 

Nearby we have Bunnings, Kmart, Coles, KFC, Hungry Jacks, BCF, Rebel Sport and a myriad of specialty shops and service providers. Schools are on your doorstep as well as bus routes public transport.

As you can see from the diagrams, these present a perfect opportunity to develop and sell off the plan. Townhouses similar to these are in high demand in the area and appeal to broad range of demographics. 

Any developer looking for a medium sized project will find this very appealing. 

 

Contact:

Ed           -        0418 360 194

Jacky     -        0468 870 611

Xavier    -        0429 332 282

1300 60 50 50 

 

3,040 m2

Details

Address 165 - 167 Olympic Pde, Kangaroo Flat
Price $1,200,000
Property Type Residential
Property ID 114
Category Vacant Land
Land Area 3,040 m2

Tools

Share This Property